



Shelter
Shelter
Shelter
Площа: 160 м²
Площа: 160 м²
Площа: 160 м²
Локація: Київська обл.
Локація: Київська обл.
Локація: Київська обл.
Рік: 2022
Рік: 2022
Рік: 2022
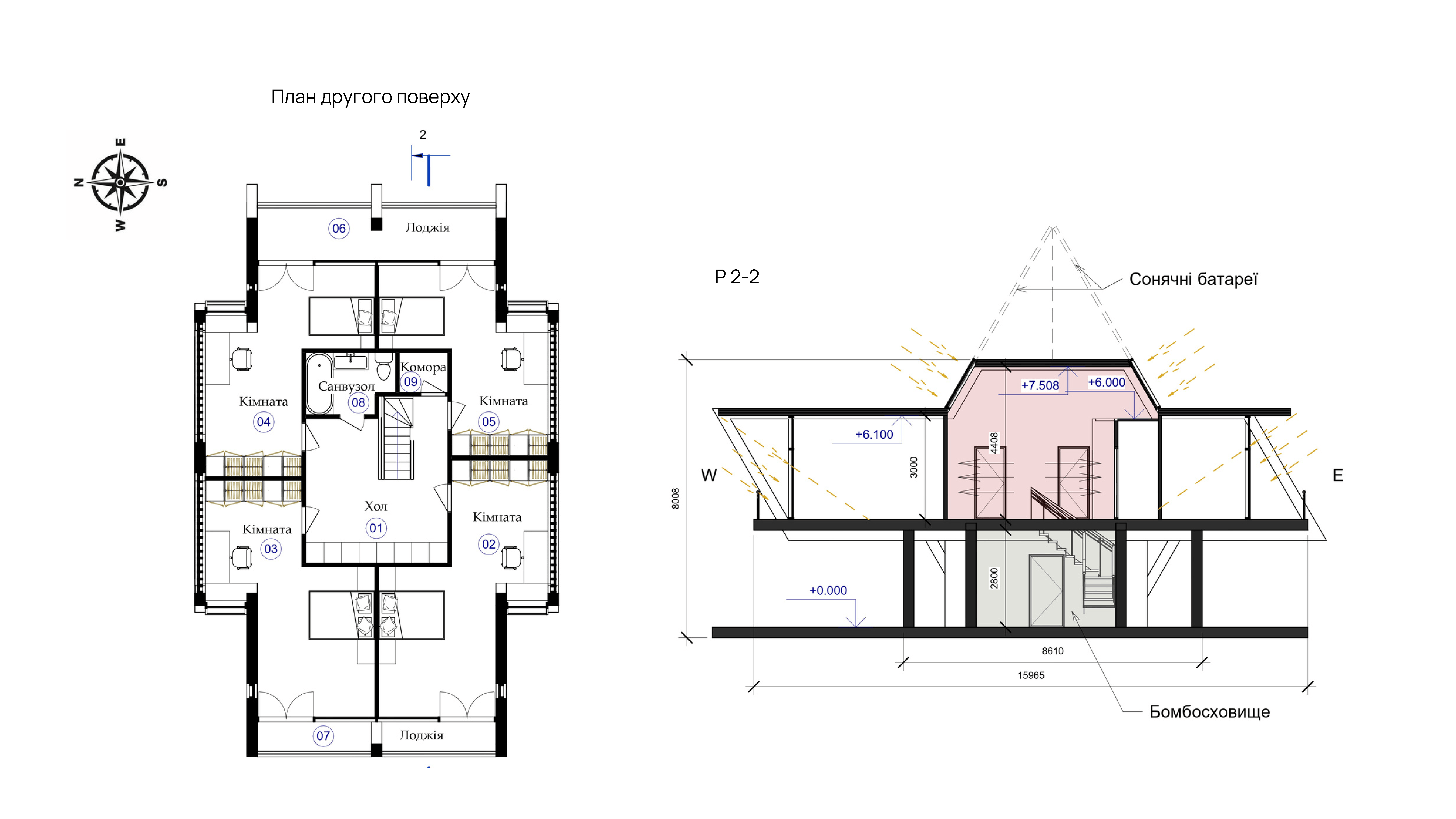
Енергоефективний житловий будинок з інтегрованим укриттям спроєктований як автономне та безпечне середовище для проживання в умовах сучасних викликів.
Архітектура базується на футуристичних, динамічних формах, які не лише формують виразний образ будинку. Замовник мав побажання будівлі саме у такому футуристичному стилі. Об'єми будівлі працюють функціонально: оптимізовують інсоляцію, зменшують теплові втрати та захищають від перегріву. Конструктивні рішення поєднують енергоефективну оболонку, високий рівень теплоізоляції та герметичності будівлі, також врахована аеродинаміка.
Укриття інтегроване в загальну структуру будинку, забезпечуючи безперервний зв’язок із житловими просторами та можливість автономного перебування. Планування продумане з точки зору ергономіки, швидкого доступу та психологічного комфорту.
Проєкт демонструє поєднання енергоефективності, безпеки та футуристичної архітектурної мови, формуючи житло, адаптоване до сучасних викликів життя.
Енергоефективний житловий будинок з інтегрованим укриттям спроєктований як автономне та безпечне середовище для проживання в умовах сучасних викликів.
Архітектура базується на футуристичних, динамічних формах, які не лише формують виразний образ будинку. Замовник мав побажання будівлі саме у такому футуристичному стилі. Об'єми будівлі працюють функціонально: оптимізовують інсоляцію, зменшують теплові втрати та захищають від перегріву. Конструктивні рішення поєднують енергоефективну оболонку, високий рівень теплоізоляції та герметичності будівлі, також врахована аеродинаміка.
Укриття інтегроване в загальну структуру будинку, забезпечуючи безперервний зв’язок із житловими просторами та можливість автономного перебування. Планування продумане з точки зору ергономіки, швидкого доступу та психологічного комфорту.
Проєкт демонструє поєднання енергоефективності, безпеки та футуристичної архітектурної мови, формуючи житло, адаптоване до сучасних викликів життя.
Енергоефективний житловий будинок з інтегрованим укриттям спроєктований як автономне та безпечне середовище для проживання в умовах сучасних викликів.
Архітектура базується на футуристичних, динамічних формах, які не лише формують виразний образ будинку. Замовник мав побажання будівлі саме у такому футуристичному стилі. Об'єми будівлі працюють функціонально: оптимізовують інсоляцію, зменшують теплові втрати та захищають від перегріву. Конструктивні рішення поєднують енергоефективну оболонку, високий рівень теплоізоляції та герметичності будівлі, також врахована аеродинаміка.
Укриття інтегроване в загальну структуру будинку, забезпечуючи безперервний зв’язок із житловими просторами та можливість автономного перебування. Планування продумане з точки зору ергономіки, швидкого доступу та психологічного комфорту.
Проєкт демонструє поєднання енергоефективності, безпеки та футуристичної архітектурної мови, формуючи житло, адаптоване до сучасних викликів життя.
Архітектура
Архітектура
Архітектура















