



Fibra 2
Fibra 2
Fibra 2
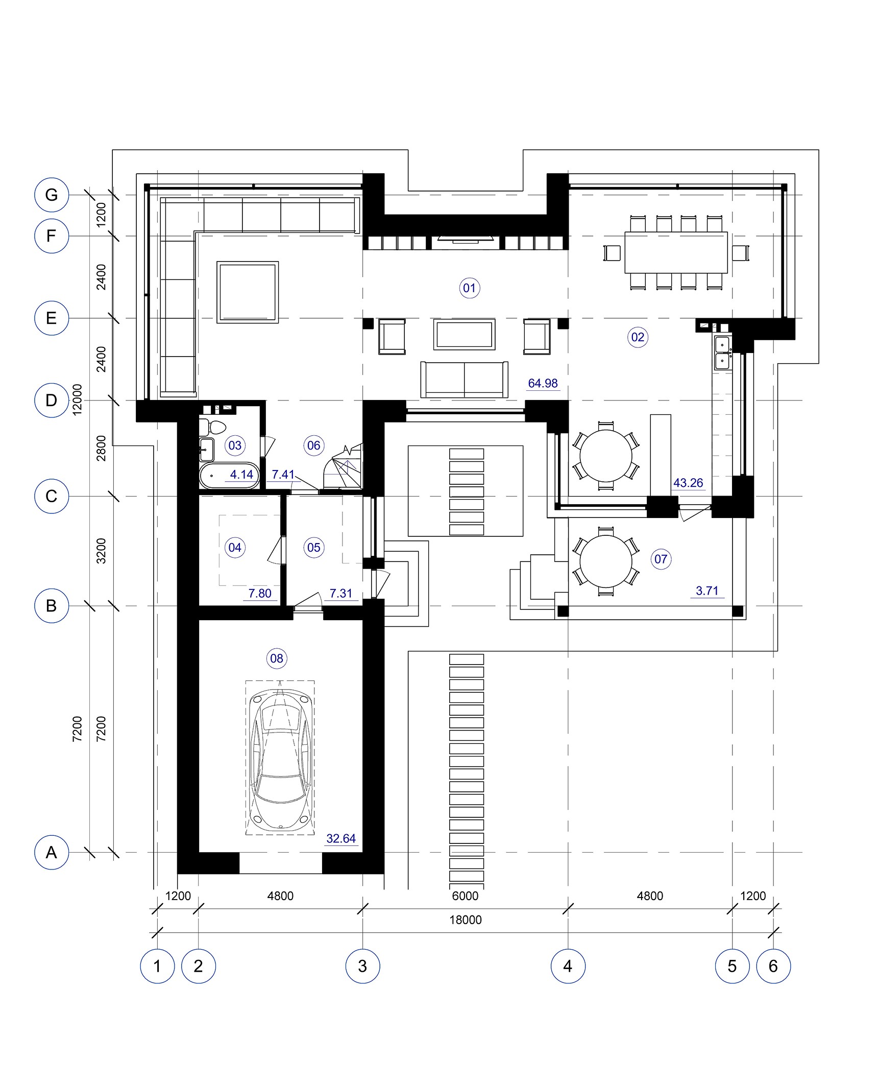
Площа: 220 м²
Площа: 220 м²
Площа: 220 м²
Локація: Київ
Локація: Київ
Локація: Київ
Рік: 2022
Рік: 2022
Рік: 2022
Fibra — житло, що дихає.
Натуральний житловий дім із конопляних волокон — це котедж для 4 мешканців, створений на перетині українських будівельних традицій та сучасних принципів сталого й енергоефективного будівництва.
Будинок запроєктований за каркасною технологією з використанням стандартів Passive House, що забезпечує низьке енергоспоживання, стабільний мікроклімат і високий рівень комфорту протягом усього року. Як утеплювач застосовано конопляні волокна — природний матеріал із високими тепло- та пароізоляційними властивостями.
Особливою рисою проєкту є покрівля з очерету, виконана за традиційною українською технологією. Вона не лише формує впізнаваний архітектурний образ, а й працює як ефективний природний захист від перегріву та втрат тепла.
Ключова цінність будинку — у використанні безпечних, екологічних матеріалів, які не виділяють шкідливих речовин і створюють здорове середовище для життя. Усі рішення спрямовані на зниження впливу на довкілля та довготривалу якість простору.
Цей дім — про усвідомлений вибір. Про житло, яке поєднує традицію, технології та турботу про людину, формуючи сучасну модель сталого життя в українському контексті.
Fibra — житло, що дихає.
Натуральний житловий дім із конопляних волокон — це котедж для 4 мешканців, створений на перетині українських будівельних традицій та сучасних принципів сталого й енергоефективного будівництва.
Будинок запроєктований за каркасною технологією з використанням стандартів Passive House, що забезпечує низьке енергоспоживання, стабільний мікроклімат і високий рівень комфорту протягом усього року. Як утеплювач застосовано конопляні волокна — природний матеріал із високими тепло- та пароізоляційними властивостями.
Особливою рисою проєкту є покрівля з очерету, виконана за традиційною українською технологією. Вона не лише формує впізнаваний архітектурний образ, а й працює як ефективний природний захист від перегріву та втрат тепла.
Ключова цінність будинку — у використанні безпечних, екологічних матеріалів, які не виділяють шкідливих речовин і створюють здорове середовище для життя. Усі рішення спрямовані на зниження впливу на довкілля та довготривалу якість простору.
Цей дім — про усвідомлений вибір. Про житло, яке поєднує традицію, технології та турботу про людину, формуючи сучасну модель сталого життя в українському контексті.
Fibra — житло, що дихає.
Натуральний житловий дім із конопляних волокон — це котедж для 4 мешканців, створений на перетині українських будівельних традицій та сучасних принципів сталого й енергоефективного будівництва.
Будинок запроєктований за каркасною технологією з використанням стандартів Passive House, що забезпечує низьке енергоспоживання, стабільний мікроклімат і високий рівень комфорту протягом усього року. Як утеплювач застосовано конопляні волокна — природний матеріал із високими тепло- та пароізоляційними властивостями.
Особливою рисою проєкту є покрівля з очерету, виконана за традиційною українською технологією. Вона не лише формує впізнаваний архітектурний образ, а й працює як ефективний природний захист від перегріву та втрат тепла.
Ключова цінність будинку — у використанні безпечних, екологічних матеріалів, які не виділяють шкідливих речовин і створюють здорове середовище для життя. Усі рішення спрямовані на зниження впливу на довкілля та довготривалу якість простору.
Цей дім — про усвідомлений вибір. Про житло, яке поєднує традицію, технології та турботу про людину, формуючи сучасну модель сталого життя в українському контексті.
Архітектура
Архітектура
Архітектура



















